Nyt boligbyggeri på Striens tomt
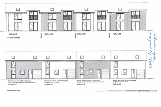
Skitse for byggeriet.

Nyt boligbyggeri på Striens tomt

AF BJARNE HANSEN / Tirsdag 11-9-18 - 09:31

RØNNE - En bygherre ønsker at etablere 18 boliger på Sct. Mortens Gade 48 i Rønne, hvor det nedbrændte Strien lå.

Det oplyser Bornholms Regionskommune.

Området er på 2.249 kvadratmeter og er lokaliseret bag facadebebyggelserne ud mod Sct. Mortens Gade og Fru Krabbes Vej.

Bebyggelsen tænkes opført i to etager og maksimalt 7,3 meters højde og med en bebyggelsesprocent op til 70.

Den ansøgte bebyggelse er ikke i overensstemmelse med den gældende kommune- eller lokalplan og overskrider blandt andet de hidtil gælde rammer for bebyggelses tæthed i området.

I kommuneplanens rammer og i den gældende lokalplan tillades nemlig kun 1,5 etagers boliger og en maksimal bebyggelsesprocent på 65.

En virkeliggørelse af det ønskede projekt kræver derfor udarbejdelse af et kommuneplantillæg og en lokalplan som kan rumme den ønskede bebyggelsesprocent og et toetagers byggeri.



FORKERTE FAKTA? Bornholm.nu skal ikke offentliggøre faktuelle fejl. Hvis der er noget i denne artikel, du føler er forkert, skal du kontakte os på mail: red@bornholm.nu.

© Copyright 2026 Bornholm.nu. Denne artikel er beskyttet af lov om ophavsret og må ikke kopieres eller på anden måde videreudnyttes uden særlig aftale.

PÅ FORSIDEN NU


Fredag 8-5-26 - 06:04 Bornholm kan blive grøn energispiller i Østersøen
NYHEDER 8.5.26 06:04

Bornholm kan blive grøn energispiller i Østersøen

KULTUR 8.5.26 05:39

Vil hylde Dan Turéll med jazz og poesi

Musikergruppe søger støtte til to forestillinger på Bornholm
KULTUR 8.5.26 05:24

Skoleelever skal skabe parade til Rønnes 700-års jubilæum

Teater Tidsrum søger støtte til historisk samskabelsesprojekt
KULTUR 8.5.26 00:42

Svaneke Bio vil starte feministisk filmklub

Filmvisninger og debat skal sætte fokus på køn og identitet
NYHEDER 8.5.26 00:23

Rønnes spildevand kan bruges til Power-to-X

Byens renseanlæg nævnes som vigtig ressource
NYHEDER 7.5.26 20:53

Lille overskud hos pensionat i Sandvig

Hammerknuden Sommerpension forbedrer resultatet markant
NYHEDER 7.5.26 21:01

Energiøen kan levere strøm til lokal produktion

Mindst 600 MW kan potentielt bruges lokalt
NYHEDER 7.5.26 14:05

Psykiatrisk foranstaltning opretholdt for 29-årig mand

Retten på Bornholm har forlænget afgørelse fra 2021
SPORT 7.5.26 17:29

BHS – PL Beton Bornholm klar til norske UCI-løb

Bornholmsk cykelhold jagter topplaceringer i Sundvolden GP og Ringerike GP
NYHEDER 7.5.26 17:14

Sommerliv i Rønne satser på 90 koncerter

Handelsforening ønsker kommunal støtte
NYHEDER 7.5.26 17:04

Bornholms Sommerrevy søger kommunalt tilskud

Revydirektør Trine Pallesen forventer billetindtægter for 800.000 kr.
DØDSFALD 7.5.26 16:10
DØDSFALD 7.5.26 15:21
NYHEDER 7.5.26 14:59

Samarbejde skal udvikle grøn energi på Bornholm

Havn, kommune og virksomheder arbejder sammen
NYHEDER 7.5.26 14:22

Mange tog imod Kongen på Bornholm

Kong Frederik deltog i markeringen af 80-året for Bornholms befrielse
NYHEDER 7.5.26 13:59

Bornholm kan blive grøn tankstation for skibe

Over 60.000 skibe passerer hvert år tæt på Bornholm
NYHEDER 7.5.26 12:05

Satellitbilleder om mulig forurening ved Bornholm

Mulige olieobservationer blev undersøgt sydøst for Snogebæk og ved Dueodde
NYHEDER 7.5.26 08:34

Endelig godkendelse af el-opkobling mangler fortsat

Folketinget har afsat 330 millioner kroner til projektet
NYHEDER 7.5.26 09:12

Asbesttag gør kommunalt byggeprojekt langt dyrere

Kommunen vælger total udskiftning frem for lapper
NYHEDER 7.5.26 07:54

Ulovlige el-installationer skal fjernes på Nørrekås Havn

Ledninger graves ned i forbindelse med nyt skurprojekt
NOTER 7.5.26 11:42

Overskud hos take away-restaurant

Aroy Dee Thai Take Away fortsætter med sorte tal på bundlinjen
NOTER 7.5.26 11:36

Mindre overskud i servicefirma i Arnager

Årsrapporten viser beskedent resultat
NYHEDER 7.5.26 09:52

Børne- og ungehjem skal placeres i Rønne

Kommunalbestyrelsen har godkendt plan for Sagavej 19